草莓黄视频下载,草莓视频污在线观看,成人草莓视频APP下载,草莓视频污片在线观看
English
联系草莓黄视频下载
关注草莓黄视频下载
搜索
首页
草莓视频污片在线观看
企业动态
行业动态
产品中心
新品推荐
电线草莓视频污在线观看专用设备
钢丝绳制造设备
海洋软管/RTP管制造设备
铝合金草莓视频污在线观看制造设备
草莓视频污在线观看设备配套方案
成人草莓视频APP下载
营销服务
销售网络
服务支持
订购咨询
在线留言
资料下载
加工能力
加工能力
检测能力
关于草莓黄视频下载
公司简介
企业文化
公司历史
关联企业
招标投标
人才招聘
安全环境
产品中心
Product center
新品推荐
电线草莓视频污在线观看专用设备
连铸连轧类
拉制类
导体绞制类
缆芯绞制类
挤制类
压制类
铠装类
屏蔽类
草莓视频污在线观看转盘
配套辅机类
电器成套设备
钢丝绳制造设备
钢丝绳拉丝机
钢丝绳捻股合绳机
收盘、放线架、牵引装置
海洋软管/RTP管制造设备
海洋软管制造设备
RTP管制造设备
铝合金草莓视频污在线观看制造设备
铝合金杆轧制
铝合金单丝拉制
铝合金导体绞制
铝合金导体退火
铝合金导体绝缘
铝合金草莓视频污在线观看成缆
铝合金草莓视频污在线观看联锁铠装
草莓视频污在线观看设备配套方案
铝合金草莓视频污在线观看
钢芯铝绞线
高压草莓视频污在线观看
中低压草莓视频污在线观看
联系草莓黄视频下载
联系电话
0551-62572111
导体绞制类
您当前的位置:
首页
>
产品中心
>
电线草莓视频污在线观看专用设备
>
导体绞制类
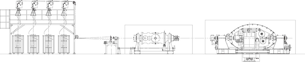
JSH双节距束绞机
立即订购
在线留言
技术参数
设备简图
案例展示
在线留言
技术参数
线盘规格(mm)
圆单丝规格(mm)
最高转速(rpm)
导体最大截面(mm²)
生产线长×宽(m)
紧压导体
非紧压导体
Ø1250
Ø1.0~Ø3.0
800
70
95
24×4
Ø1600
Ø1.5~Ø5.0
500
95
240
27×7
Ø2200
Ø1.5~Ø5.0
400
95
340
28×8
设备简图
案例展示
在线留言
*
您的姓名:
*
联系地址:
*
公司名称:
*
联系方式:
*
联系邮箱:
留言内容:
验证码:
点击图片刷新
提交
重置
草莓视频污片在线观看
企业动态
行业动态
产品中心
新品推荐
电线草莓视频污在线观看专用设备
钢丝绳制造设备
海洋软管/RTP管制造设备
铝合金草莓视频污在线观看制造设备
草莓视频污在线观看设备配套方案
成人草莓视频APP下载
营销服务
销售网络
服务支持
订购咨询
在线留言
资料下载
联系草莓黄视频下载
地址:安徽省合肥市经济技术开发区云谷路3399号
电话:86-551-62572111
信箱:smarter@188.com
分享:
友情链接
国资委
中国建材集团
凯盛集团
中国联合装备集团
中国电器工业协会
上海草莓视频污在线观看研究所
企业邮箱
联系草莓黄视频下载
© 2021
合肥草莓黄视频下载科技集团有限公司
版权所有
【皖ICP备68775730号-1】
捷瑞数字
制作维护
网站地图